Zur Hauptnavigation springen [Alt]+[0] Zum Seiteninhalt springen [Alt]+[1]

HRK 6TG10 EInstT

Teil A: Stromkreise der Elektro-Installationstechnik

1.     Übungsaufgaben

Aufgabe 1: Beleuchtungsanlage

Zur Beleuchtung von Schlafzimmer und Flur ist eine Anlage gemäß der gegebenen Skizze einzurichten. Schaltplan Beleuchtung


Die Schalter Q1, Q2 und Q3 sollen die Leuchte E1 schalten. Mit den beiden Tastern sollen die (immer zusammen leuchtenden) Leuchten E2 und E3 geschaltet werden.
  1. Bezeichne alle noch nicht bezeichneten Betriebsmittel in der Zeichnung.
  2. Wie wird diese Art der Darstellung (die Zeichnung) genannt?
  3. Welche Leuchten befinden sich im Flur, welche im Schlafzimmer? Gib eine kurze Begründung.
  4. Schalter Q1 und der linke Taster sollen beleuchtet werden. Ergänze die Symbole entsprechend.
  5. Welche Bedeutung hat das quadratische Symbol neben E1? Welche Folgerung ergibt sich für den Anschluss der Leuchte?
  6. Zeichne den Stromlaufplan in zusammenhängender Darstellung (Seite 2). Unbekannte Symbole sind im Tabellenbuch nachzuschlagen. Bezeichne alle Betriebsmittel. Das Glimmlämpchen im Schalter Q1 (siehe Teilaufgabe d) leuchtet, wenn E1 ausgeschaltet ist. Das Lämpchen im linken Taster leuchtet praktisch immer (es erlischt nur kurz, während  der Taster gedrückt ist).
  7. Trage die Anzahl der Leiter in die obige Zeichnung ein (neben die kleinen Querstriche).

Vorlage für Schaltplan


Aufgabe 2: Schwachstrominstallation

Vervollständige die Pläne auf dem Arbeitsblatt. Verwende Farben!

  1. Türöffner-Stromkreis: S11 (Wohnung 1) und S21 (Wohnung 2) schalten den Türöffner.
  2. Klingel-Stromkreis: S02 (Haustür) schaltet die Klingel in Wohnung 1, S03 (Haustür) die Klingel in Wohnung 2.
  3. Hofleuchte mit Stromstoßschalter: S01 (Haustür) und S12 (Wohnung 1) schalten Leuchte E1 über Stromstoßrelais (Spulenspannung des Relais: 8 V, d. h. am Klingeltrafo angeschlossen).
  4. Trage in den Übersichtsschaltplan die Objektkennzeichnungen ein.

Vorlage für Schaltplan


Aufgabe 3: Treppenlichtzeitschalter

In einem Treppenhaus soll eine Leuchte von drei verschiedenen Stellen eingeschaltet werden können.

  1. Welche Aufgabe hat der Schalter Q1 und wofür stehen die Abkürzungen N, T und A neben seinen Kontakten?
  2. Vervollständige den Stromlaufplan der Schaltung im Dreileiteranschluss.
       Schaltplan
  3. Welchen Nachteil hat die Schaltung im Dreileiteranschluss?


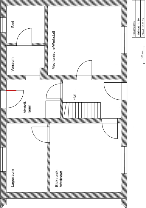
Aufgabe 4: Elektrische Anlage

Zeichne in den gegebenen Grundriss den Installationsschaltplan der nachfolgend beschriebenen Anlage ein (Symbole klein, Verwendung unterschiedlicher Farben für die verschiedenen Stromkreise). Trage auch die Anzahl der Leiter ein.

  1. An der linken Wand im Abstellraum ist der Unterverteiler montiert; die Zuleitung ist über die hintere Außenwand des Hauses hereingeführt. Der Unterverteiler enthält eine Reihe von LS-Schaltern; uns interessieren nur die ersten vier davon (Stromkreise 1 bis 5).
  2. In der Elektronik-Werkstatt ist eine Wechselschaltung einzurichten; die zwei Leuchten (Leuchtstofflampen) befinden sich im Abstand von 1 m in der Mitte der Decke (Stromkreis 1).
  3. In der Elektronik-Werkstatt sind zwei Steckdosen einzubauen; eine davon befindet sich in der Mitte der linken Wand, die andere unter dem Schalter neben der vorderen Tür (Stromkreis 2).
  4. Im Flur ist eine Stromstoßschaltung einzurichten; die Leuchte ist in der Mitte der Decke angeordnet (Stromkreis 3).
  5. Im Bad ist ein Waschautomat angeschlossen (Stromkreis 4).
  6. Im Lagerraum ist eine Drehstromsteckdose angeschlossen (Stromkreis 5).

Grundriss der Wohnung



Aufgabe 5: Beleuchtungsanlage in einem Mehrfamilienhaus

Zur Beleuchtung von Treppenhaus und Flur ist eine Anlage gemäß der gegebenen Skizze einzurichten. Die Taster S1 und S2 im Treppenhaus sind beleuchtet; der Treppenlichtzeitschalter ist in Dreileiterschaltung (nicht nachschaltbar) auszuführen. Im Flur ist eine Wechselschaltung einzurichten.

Schaltplan Beleuchtung  Treppenhaus

  1. Vervollständige den Stromlaufplan (in zusammenhängender Darstellung) für die Treppenlichtzeitschaltung mit beleuchteten Tastern auf dem zugehörigen Arbeitsblatt. Bezeichne die Objekte.
  2. Vervollständige den Stromlaufplan (in zusammenhängender Darstellung) für die Wechselschaltung mit Steckdosen auf dem zugehörigen Arbeitsblatt. Bezeichne die Objekte.
  3. Trage in den Übersichtsschaltplan die Leiterzahl ein (neben die Querstriche).
  4. Unter welchen Umständen erlischt das Glimmlämpchen im Taster S2?
  5. Vervollständige das Zeitablaufdiagramm.

Vorlage für Schaltplan


Abbildungen: Dr. Martin Schmid



3_0_hrk_6tg10_einstt [docx][298 KB]
3_0_hrk_6tg10_einstt [pdf][220 KB]

 

Weiter zu

Lösung