Zur Hauptnavigation springen [Alt]+[0] Zum Seiteninhalt springen [Alt]+[1]

Arbeitsauftrag Villa Kaiser


Kinderzeichnung Haus Die alte „Kaiser“-Villa wurde verkauft. Das Gebäude wurde 1932 erbaut.

Der neue Besitzer des Hauses plant das Gebäude von Grund auf gründlich zu sanieren und zu modernisieren.

Unter Anderem möchte er auch alle Fenster im EG, OG, und 1. DG durch neue moderne Alu-Fenster ersetzen zu lassen.


Aufgabe 1
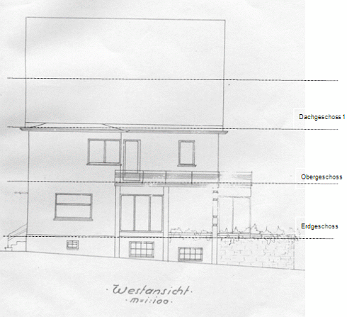
Um das mögliche Energieeinsparpotential einschätzen zu können sollen zunächst die Wand und Fensterflächen für die beheizten Geschosse ermittelt werden.

Bestimme zunächst für das EG, das OG und das 1 DG die Fensterflächen. Halte die Ergebnisse in tabellarischer Form für das Projekt fest.

Geschoss Ausrichtung
z.B. S wie Süd
Länge
in m
Breite
im m
Fläche
in m²
         

 

Aufgabe 2
Die alten Fensterscheiben haben einen Wärmedurchgangskoeffizienten von 2,7 W/(m²*K). Die Neuen einen Wärmedurchgangskoeffizienten von 1,0 W/(m²*K).

Im Unterricht haben wir für den Wärmeverlust durch ein Bauteil folgende Formel kennengelernt:

                                         Φ = A * U * ΔΘ

  • Für die alten Fenster hat der Rahmen einen Wärmedurchgangskoeffizienten von U Rahmen = 5 W/m²*K und einen Flächenanteil von 20 Prozent. Die Scheibe einen Flächenanteil von 80 Prozent.
    Wie groß ist der Wärmedurchgangskoeffizient des gesamten Fensters?
  • Für die neuen Fenster hat der Rahmen einen Wärmedurchgangs-koeffizienten von U Rahmen = 1,5 W/m²*K und einen Flächenanteil von 30 Prozent. Die Scheibe einen Flächenanteil von 70 Prozent.
    Wie groß ist der Wärmedurchgangskoeffizient des Fensters?
  • Berechne den Wärmestrom welcher durch die alten bzw. die neuen Fenster entweicht, wenn Du mit einer Außentemperatur von
    –12°C und einer Innentemperatur von 20° rechnest.
  • Halte den Rechenweg und das Ergebnis nachvollziehbar für das Projekt fest.

 

Aufgabe 3
Berechne den Wärmeverlust durch die Fenster über den Zeitraum einer Heizperiode. Gehe von 5 Monaten Laufzeit aus.


Aufgabe 4
Heizöl hat einen Heizwert von 10 kWh pro Liter. Wie viel Liter Öl können eingespart werden?


Aufgabe 5
Wie viel Geld könnte eingespart werden, wenn der Liter Öl 0,90 € kostet?

Villa Ansicht1

Villa Ansicht2

Villa Ansicht3

Villa Ansicht4

 

17_arbeitsauftrag_villa_kaiser [doc][3 MB]
17_arbeitsauftrag_villa_kaiser [pdf][1 MB]

 

Weiter zu

Lösung